Dimplex
nieskategoryzowany
WFC3NS
Dimplex WFC3NS Instrukcja
Oto Dimplex WFC3NS (nieskategoryzowany) instrukcja użytkownika. 4 strony w języku Angielski o wadze 0.3 Mb. Jeśli nie możesz znaleźć odpowiedzi na swoje pytanie Zapytaj naszą społeczność.
Strona 1/4

Installation and Operating Instructions
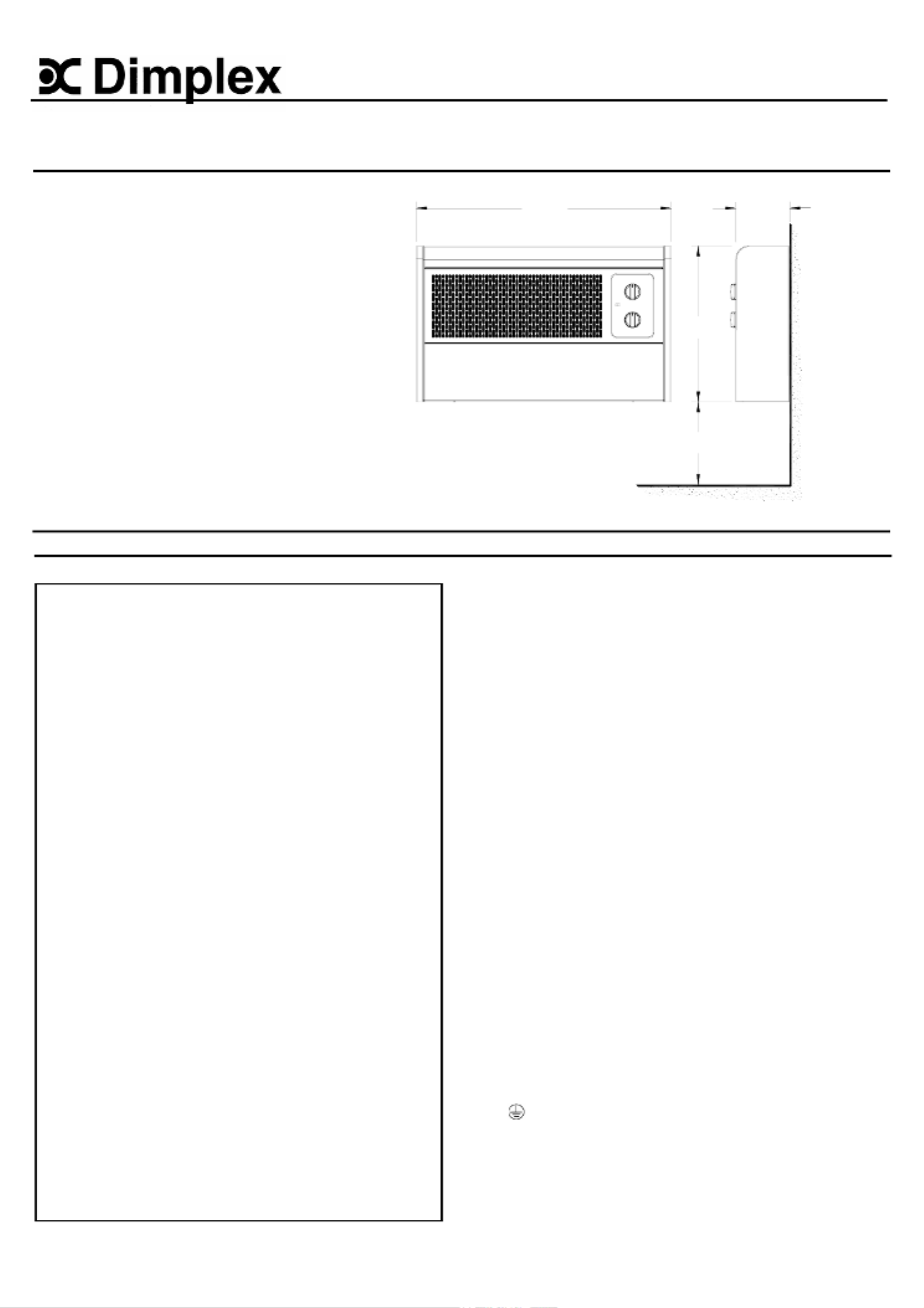
Dimplex Wall-mounted Fan Convector 08/18724/0 Issue 0
Models : WFC 3NB and WFC 3NS
350mm min
571mm 120mm
350mm
Dimensions
Model(s) Specification
WFC 3NB 3kW, Switch, Thermostat & Neon - Black
WFC 3NS 3kW, Switch, Thermostat & Neon - Silver
Fig. 1
Installation
Before undertaking installation work, ensure the electricity supply
is disconnected from any relevant fixed wiring.
Supply cable is not provided with this appliance, and a competent
electrician should therefore install it.
The appliance must be fitted horizontally with the cable or conduit entry
at bottom right. It should be mounted such that the underside is at least
350mm above the floor and the top of the heater is 150mm below any
overhanging shelf or obstruction.
This heater must be used on an A.C.~ supply only and the voltage
marked on the heater must correspond to the supply voltage.
To comply with the I.E.E. Wiring Regulations, the appliance must be
earthed; the supply circuit must be adequate for the input of the
appliance, and the circuit protected by a suitable 13A fuse. A suitable
termination to the fixed wiring of the premises must be provided adjacent
to the final position of the appliance. In this instance, such a termination
can be a double-pole switch with a contact separation of at least 3mm in
all poles.
The heater must not be located immediately below a socket-outlet.
Electrical
WARNING : THIS APPLIANCE MUST BE EARTHED.
After ensuring the electricity supply is not live, electrical connections can
be made, either to an adjacent double-pole switch having a contact
separation of at least 3mm in all poles or to a plug-top for use in a
standard 13A socket.
If the latter: Connect Green and Yellow wire to plug terminal marked E
or Green or Green and Yellow. Connect Blue wire to plug terminal
marked N or Black. Connect Brown wire to plug terminal marked L or
Red.
Refit cover, first hooking top over the back of the unit and then securing
the bottom by refitting the two screws under the bottom edge. The
appliance is now ready for use and the electricity supply can be
reinstated.
THESE INSTRUCTIONS SHOULD BE READ CAREFULLY AND RETAINED FOR FUTURE REFERENCE.
IMPORTANT SAFETY ADVICE
WARNING – THIS APPLIANCE MUST NOT BE USED IN A
BATHROOM.
WARNING – DO NOT USE THIS HEATER IN THE IMMEDIATE
SURROUNDINGS OF A BATH, A SHOWER OR A SWIMMING
POOL.
WARNING – THIS HEATER MUST NOT BE LOCATED
IMMEDIATELY BELOW A FIXED SOCKET OUTLET.
DO NOT USE THE HEATER UNTIL IT IS WALL MOUNTED
CORRECTLY.
The heater carries a warning 'Do Not Cover' to alert the user
to the risk of overheating that exists if the heater is
accidentally covered.
NEVER cover or obstruct in any way the air inlet slots at the
front of the heater or the heat outlet slots in the base of the
heater.
Keep combustible materials such as drapes and other
furnishings clear from the front of the heater. Do not use
heater to dry your laundry.
If young children, the aged, or infirm are likely to be left in
the vicinity of the heater, we advise that adequate
precautions should be taken. We recommend that a guard
be fitted to ensure contact with the heater is avoided and
objects cannot be inserted into the product.
If you use this heater in conjunction with a thermal control, a
programme controller, a timer or any other device which
switches on the heater automatically, remember to observe
all safety warnings at all times.
Do not use where excessive dust or moisture is present.
For further information, please contact our guard supplier
direct on Tel. No. 01603 667957, or in the case of difficulty or
for further advice contact the Customer Helpline.
Rozwiązywanie problemów Dimplex WFC3NS
Jeśli dokładnie przeczytałeś instrukcję, ale nie znalazłeś rozwiązania swojego problemu, poproś o pomoc innych użytkowników
Specyfikacje
| Marka: | Dimplex |
| Kategoria: | nieskategoryzowany |
| Model: | WFC3NS |