Hager
nieskategoryzowany
JKD101SPD
Hager JKD101SPD Instrukcja
Oto Hager JKD101SPD (nieskategoryzowany) instrukcja użytkownika. 2 strony w języku Angielski o wadze 0.3 Mb. Jeśli nie możesz znaleźć odpowiedzi na swoje pytanie Zapytaj naszą społeczność.
Strona 1/2

JK 1 Surge ProtectionD Instructions
Instruction leaflet for fitting 125A Surge
Protection in Power and lighting boards
JK 101SPDD
JK 102SPDD
Pozidrive
PZ2
2.5mm
8mm
Socket
GB
1ZD0 - Issue 0 -1869199
ZD00869ZD0869
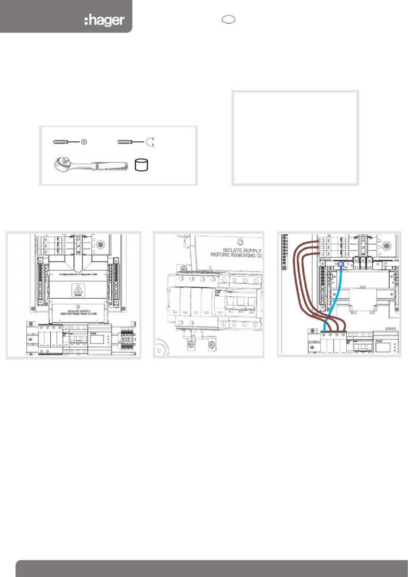
Clip the 4 module surge protection
device to the dinrail next to the incomer.
Fit the 3 KRN199 terminal block's to the
first 3 phases on the left hand side of
the busbar stack as shown above and
torque to 3.5Nm.
Secure the 3 brown cables to the
terminals of the Surge protection
device and the corresponding KRN
devices L1/L2/L3 and torque to
3.5Nm.
Secure the Neutral cable to the Surge
device to 3.5Nm and use the M5 hex
head screw with washers to secure
the ring terminal to the neutral bar
next to the factory fitted neutral and
secure to 3.5Nm.
1. 1 x Type I+II or Type II Surge
Protection device
2. 1 x Copper Earth Link
3. 2 Hex head Earth screws x
4. 3 x KRN199 Terminal block
5. 1 x ZB0220 M6 Carp Nut
6. 1 x Neutral link
7. 3 x L1/L2/L3 Phase links
8. 1 x M5 Hex head screw & washers
Parts list:
The device may only be connected and installed by an electrically skilled person. National standards and safety regulations must be
observed.
The device must be checked for external damage prior to installation. If any damage or other defects are detected in this check, the
device must not be installed.
Its use is only permitted within the limits shown and stated in the installation instructions.
Opening or otherwise tampering with the device invalidates the warranty.
Place the copper earth component into
the bottom two cage terminals of the
surge protection device and secure to
3.5Nm.
Use the 2 high torque screws provided to
then secure the earth link to the base at
3.5Nm.
KRN199
KRN199
KRN199
TI+T2 SPD
'Ensure that when re-fitting the shroud that the left hand side is cut out to avoid clashing with the Surge protection cables'
Rozwiązywanie problemów Hager JKD101SPD
Jeśli dokładnie przeczytałeś instrukcję, ale nie znalazłeś rozwiązania swojego problemu, poproś o pomoc innych użytkowników
Specyfikacje
| Marka: | Hager |
| Kategoria: | nieskategoryzowany |
| Model: | JKD101SPD |