Hager
nieskategoryzowany
REP102S
Hager REP102S Instrukcja
Oto Hager REP102S (nieskategoryzowany) instrukcja użytkownika. 2 strony w języku Angielski o wadze 0.3 Mb. Jeśli nie możesz znaleźć odpowiedzi na swoje pytanie Zapytaj naszą społeczność.
Strona 1/2

6LE002037A Ind. A - 02/20171
- REK221Y
- REA118S-WD1218
- REA121X-WD1221
DE/Innenstation audio
IT/Postazione interna audio
FR/Poste intérieur audio
NL/Binnenstation audio
GB/Indoor station audio
DE/Bus Strangversorgung
IT/ Alimentazione della linea
FR/Alimentation de ligne
NL/Bus-lijnvoeding
GB/line power supply
DE/Netztrafo
IT/Trasformatore di rete
FR/Transformateur secteur
NL/Nettransformator
GB/Mains transformer
DE/
Audio
-Türstation
IT/ Posto esterno
audio
FR/Platine de rue
audio
NL/Deurstation
audio
GB/Door station
audio
- RED011Y
- RED011X
- ST320
Verseiltes Adernpaar
Coppia di fi li ritorti
Paire de fils torsadés
Getwist aderpaar
Wrapped wire pair
Türö nerff
Apriporta
gâche électrique
Deuropener
Door release
Terminator/Abschlusswiderstand
Terminatore/resistenza terminale
Terminaison/résistance de bout de ligne
Terminator/afsluitweerstand
Terminator/terminating resistor
- RER1..Y
- RER1..X
0/0
- RER2..Y
- RER2..X
DE/automatisch adressieren
IT/indirizzamento automatico
FR/adressage automatique
NL/automatische adressering
GB/automatic addressing
0/0
0/1
0/0
0/1
0/0
0/1
Kontakt für Beleuchtung
Contatto per l'illuminazione
Contact pour éclairage
Contact voor verlichting
Contact for lighting
Etagentaster
Pulsanti del piano
Bouton d'appel d’étage
Etagetoets
Storey push-button
0/0
0/1
2
0
1
00
4
2
2
2
2
2
2
Mon
12 V~
Cam 230 V~PE
230 V~
max. 24 V/1 A
DE/1) Nicht manipulationsgeschützte Türöffner Verdrahtung 2) Manipulationsgeschützte Türöffner Verdrahtung
IT/1) Cablaggio apriporta senza protezione antimanomissioni 2) Cablaggio apriporta con protezione antimanomissioni
FR/1) Câblage d'ouvre-porte non protégé contre l’effraction 2) Câblage d'ouvre-porte protégé contre l’effraction
NL/1) Bedrading deuropener tegen manipulatie niet beveiligd 2) Bedrading deuropener tegen manipulatie beveiligd
GB/1) Not manipulation protected door release wiring 2) Manipulation protected door relea
se wiring
DE/Adresseinstellung
IT/Impostazione dell'indirizzo
FR/Réglage d'adresse
NL/Instellen adres
GB/Address setting
1) 2)
1)
2)
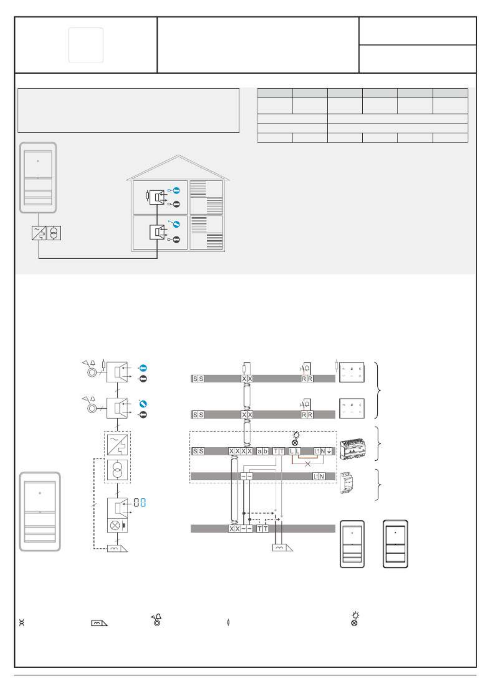
Installation
6LE002037A Ind. A - 02/2017
2D
AUDIO
REP1.1Y, REP1.2Y, REP1.1S, REP1.2S, REP1.1X, REP1.2X
DE/BESCHREIBUNG DES AUDIO-SET
IT/DESCRIZIONE DEL SET AUDIO
FR/DESCRIPTION DE L’ENSEMBLE AUDIO
NL/BESCHRIJVING VAN HET AUDIO SET
GB/DESCRIPTION OF THE AUDIO SET
DE/ : 1 Türstation, 1 oder 2 Innenstationen.Durchgangsinstallation
IT/ : 1 Posto esterno, 1 o 2 Postazioni interna. Installazione passante
FR/ : 1 Platine de rue, 1 ou 2 Postes intérieur. Installation série
NL/ : 1 Deurstation, 1 of 2 Binnenstations. Doorgangsinstallatie
GB/ : 1 Door station, 1 or 2 Indoor stations. Through installation
REP1.1Y REP1.2Y REP1.1S REP1.2S REP1.1X REP1.2X
1 REK221Y 2 REK221Y 1 REA118S
1 WD1218
2 REA118S
2 WD1218
1 REA121X
1 WD1221
2 REA121X
2 WD1221
1 RED011Y 1 RED011X
1 ST320 1 ST320
1 RER1..Y 1 RER2..Y 1 RER1..X 1 RER2..X 1 RER1..X 1 RER2..X
1. Durchgangsinstallation / Installazione passante / Installation série/ Doorgangsinstallatie / Through installation
Rozwiązywanie problemów Hager REP102S
Jeśli dokładnie przeczytałeś instrukcję, ale nie znalazłeś rozwiązania swojego problemu, poproś o pomoc innych użytkowników
Specyfikacje
| Marka: | Hager |
| Kategoria: | nieskategoryzowany |
| Model: | REP102S |